Biobased Buiten Huis

 

Op de plek van een voormalige boerderij in het buitengebied van Zeist heeft ATELIERFRONT een biobased en dampopen woning ontworpen, waar je het hele jaar door prettig binnen én buiten kan wonen.

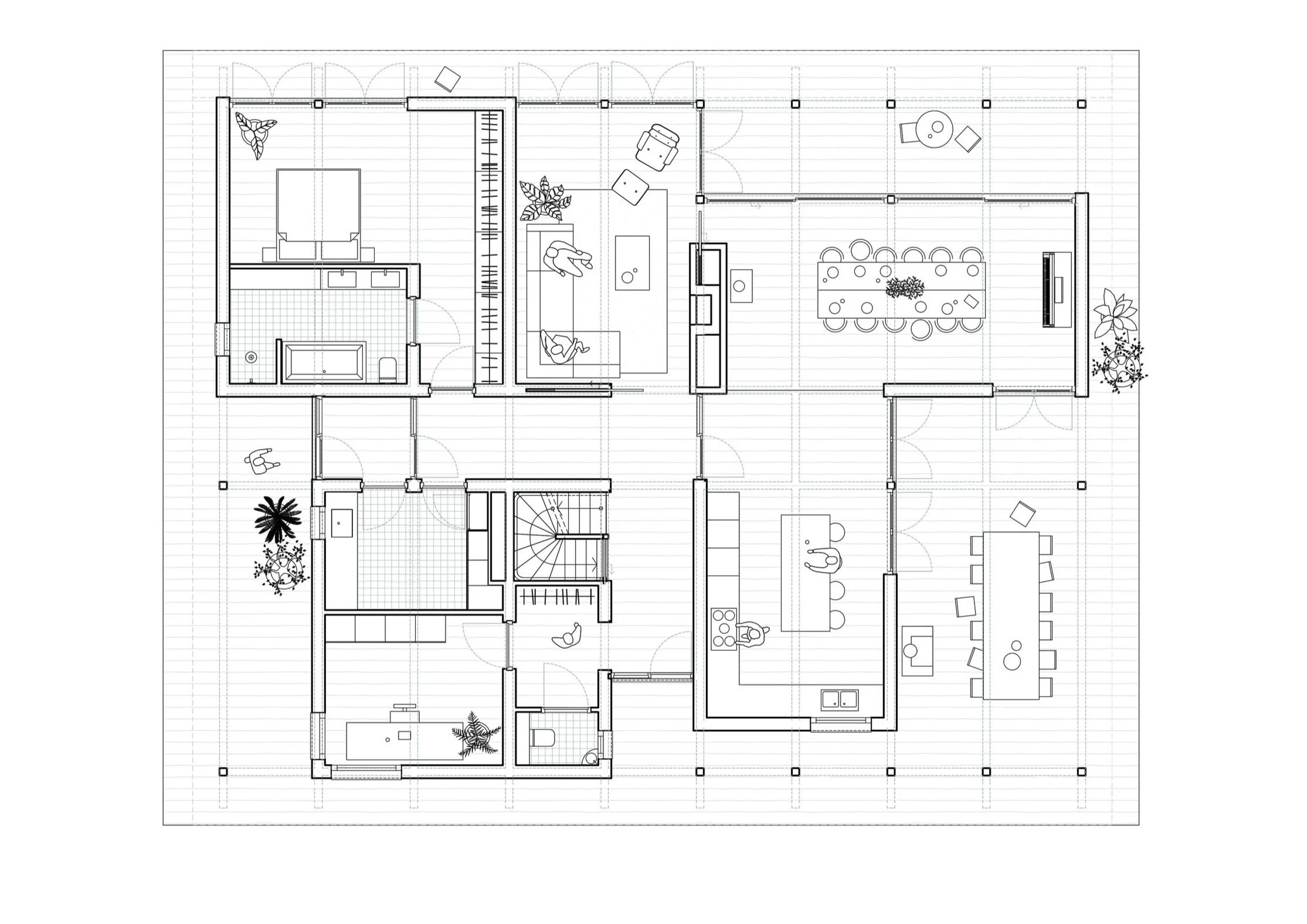
Het huis bestaat uit twee aan elkaar grenzende lange schuurvormige volumes, die opgetild zijn boven het landschap, met rondom een kastanje houten vlonder. De constructie is opgebouwd uit lariks kolommen en balken. De kap steekt aan alle zijden uit en de gevellijn meandert onder de houten constructie door, waardoor er verschillende  buitenkamers ontstaan. De buitenkamers zijn een verlengstuk van de woning en bieden de mogelijkheid om op ieder moment van de dag en in elk seizoen buiten te zitten. Optimale oriëntatie op de zon zorgt ervoor dat er het hele jaar door, zowel binnen als buiten, op het juiste moment zon of schaduw is.

 
 
 
 

Het huis is robuust opgezet, met brede doorgangen en heldere zichtlijnen. Ruimtes lopen in elkaar over, maar zijn door houten schuifdeuren wel van elkaar te scheiden. Het voelt hierdoor tegelijkertijd ruim en toch ook knus aan. In het hart van het huis is een haard, die de woon- en eetkamer van elkaar scheidt. Alle leefruimtes zijn op de begane grond. In het grotere volume zitten op de bovenverdieping gasten slaapkamers. In het lagere volume is de kap open gehouden, waardoor de eetkamer extra hoogte heeft.

 
 

Het huis is goed geïsoleerd met dampopen biobased materialen. Dit zorgt voor een voelbaar prettig en gezond binnenklimaat. Door de eigenschappen van deze materialen blijft de warmte binnen, maar kan de damp door de capillaire werking wel naar buiten. De binnenwanden zijn van leemsteen, voor extra thermische massa, wat bijdraagt aan een optimale binnentemperatuur.

De natuurlijke materialen zorgen niet alleen voor een aangenaam binnenklimaat, maar geven het huis ook een ontspannen karkater. De leemstuc en het hout zorgen voor een warme sfeer. Doordat de afwerkingen binnen en buiten dezelfde uitstraling hebben, lopen binnen en buiten echt in elkaar over. De grote puien geven mooi zicht op het Hollandse weide landschap.


 
 
 
 

Colofon

Locatie Zeist, NL

Opdrachtgever Particulier

Samenwerking Legemaat van Elst, D-IA,
NAP ingenieurs, Emmanuel Laugs/Ekoplus, Aveco de Bondt, Copijn Groenekan Boomkwekerij & Tuinarchitectuur.

Jaar 2025

Fotografie Max Hart Nibbrig

Nominaties en prijzen

Jury Winner Archello Awards 2025 House of the Year (rural) - Medium

Nominatie Nationale Houtbouwprijs 2025

Finalist MARCH Material Awards 2025

Longlist ARC25 Nieuwe Architectuur Award

 
 

Gerelateerde projecten

 
 

CNS de Plataan

 

Apollolaan

 
Next
Next

Het Gibbonpaviljoen Artis